 Propočítávám cenu
 Propočítávám cenu

 
 
	Náš hlavní dodavatel působí na trhu stínící techniky více než 20 let. Díky tomu jsme zde pro Vás i v oblasti technické podpory.
 
	Úspěšně jsme zastínily přes 350 000 oken a dveří po celé České a Slovenské republice.
 
	Při objednávce s registrací získáte možnost slevy -5%. Slevu uvidíte ihned a také po vložení produktu do košíku.
 Propočítávám cenu
 Propočítávám cenu
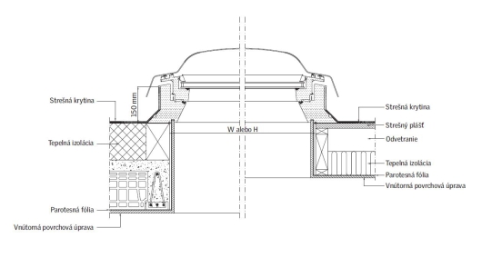
Zdvíhací rám ZCE
	
	
Výška: 15 cm
| Model: | 60x60 / 60x90 / 80x80 / 90x90 / 90x120 / 100x100 / 100x150 / 120x120 | 
Táto webová stránka používa cookies, aby Vám umožnila čo najlepší zážitok z našich webových stránok.